$650,000 Sale
Listed 15 hours ago
6 TENUTO Link
· 3
· 2.50
· 2
· 2070.02
Key Facts
Key facts for 6 TENUTO Link
Property Type
House, 2 Storey
Parking
Double Garage Attached 2 garage, Double Garage Attached
MLS®
E4461674
Size
2070.02 sqft
Basement
Full,Unfinished, Unfinished
Listed on
-
Lot size
-
Tax
-
Days on Website
-
Year Built
2025
Maintenance Fee
-
Description
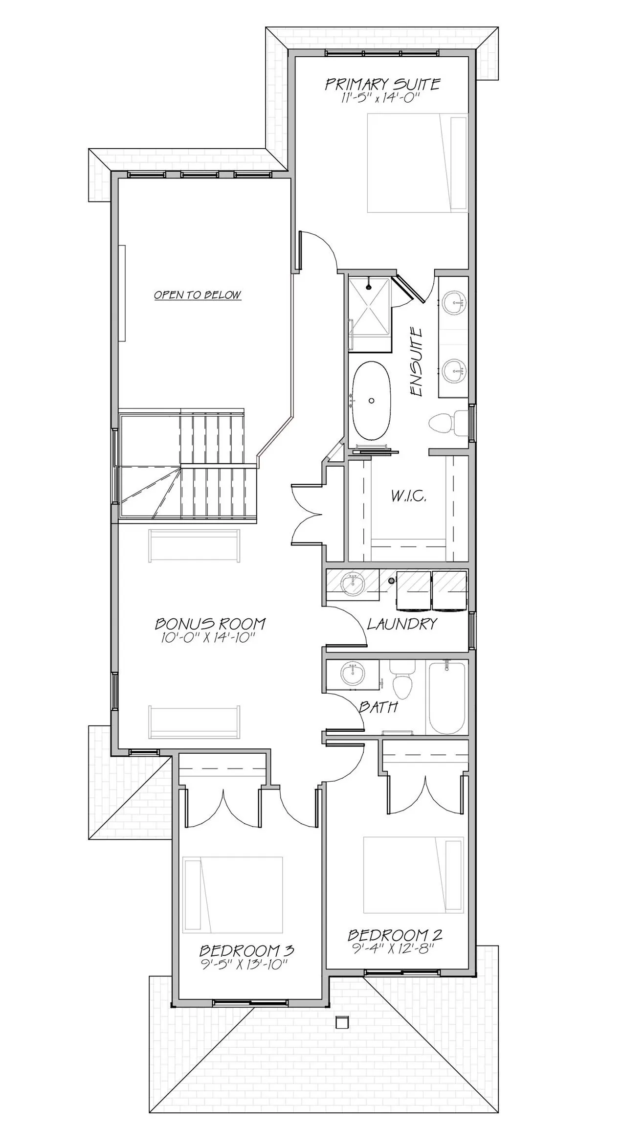
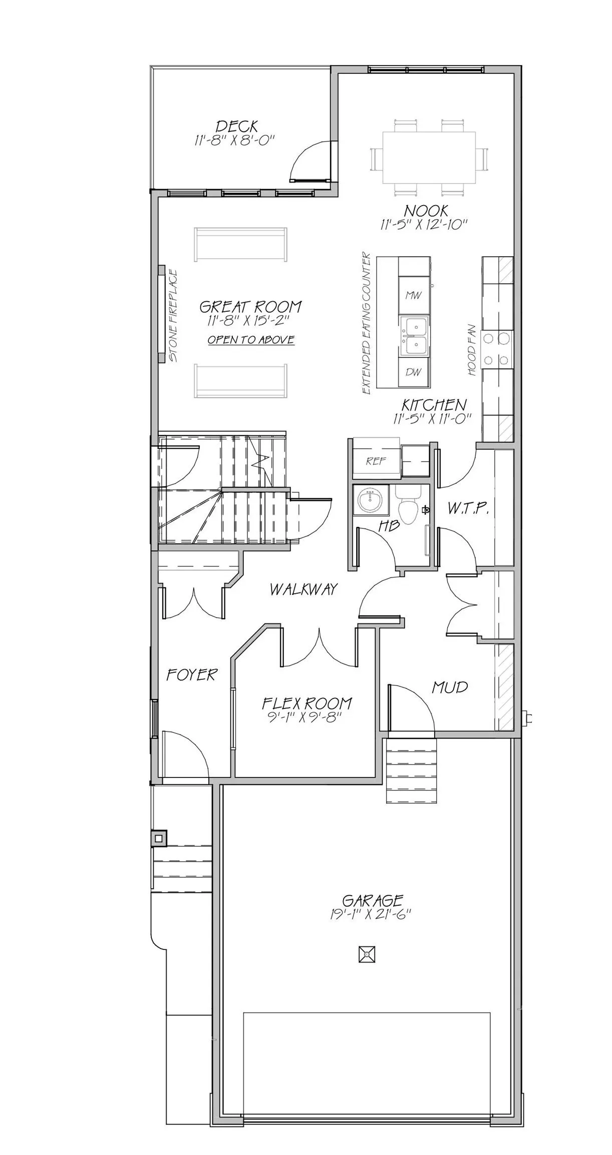
Experience modern luxury and comfort in this brand-new 2070 sq ft home, perfectly designed to be your forever space. This is your chance to be the first to move in. The main floor features an open concept layout with 9 ft ceilings, a spacious great room with a striking stone fireplace open to above,... a chef inspired kitchen with quartz countertops, extended eating bar, and walk through pantry, plus a bright dining nook leading to the back deck. A den, mudroom, and half bath complete the main level. Upstairs offers a luxurious primary suite with a 5 piece ensuite and walk in closet, 2 additional bedrooms, a full bath, convenient laundry, and a bonus room overlooking the great room. Designed with style and attention to detail inside and out, this home is ideally located in Spruce Grove’s desirable Tonewood community, close to Tonewood Park, Jubilee Park, Deer Valley Golf Club, and shopping at Westland Market Square and Spruce Grove Centre. Don’t miss this opportunity to make this brand new build your own!
Similar Properties (No results)
Courtesy of: John Rota, Exp Realty